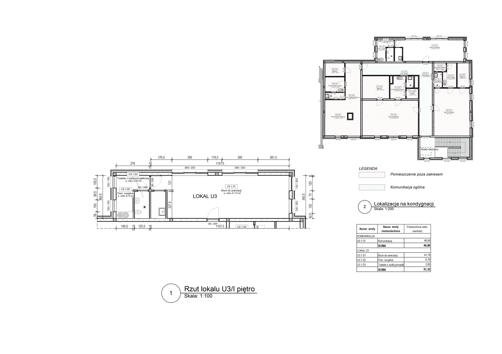
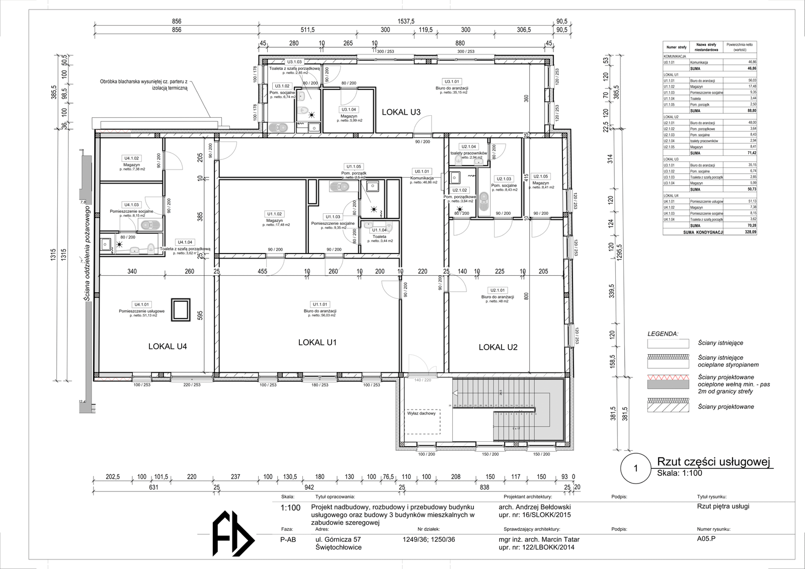
Lokal U3 piętro

– Metraż: 51,33 m2 
– Cena:  40,00 zł /m2 – negocjuj cenę
– Lokalizacja: piętro
– Zakończenie budowy: IV kwartał 2025
Klimatyzacja
Ogrzewanie podłogowe (gazowe)
Monitorowany budynek
– Otwarta, jasna przestrzeń, narożne przeszklenia
– Wykończone zaplecze kuchenne oraz toaleta


Udogodnienia:

– Możliwość wynajmu powierzchni w piwnicy
– Możliwość korzystania z wewnętrznego, monitorowanego, zamkniętego parkingu
– Możliwość adaptacji przestrzeni w korytarzu